880 VINDALE ROADTAVARES, FL 32778




Mortgage Calculator
Monthly Payment (Est.)
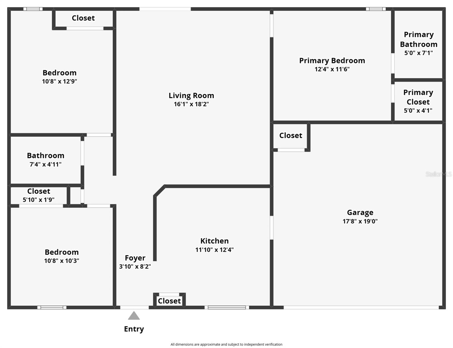
$1,255Welcome to 880 Vindale Rd — a place where peaceful waterfront living and everyday comfort meet in the heart of the sought-after 55+ community of Tavares Imperial Village. This charming 3-bedroom, 2-bath home offers a perfect blend of cozy layout and practicality, ready for you to step right in and start enjoying the Florida lifestyle. From the moment you enter, the bright, open-concept layout invites you in. The living and dining spaces flow effortlessly into a well-appointed kitchen featuring new appliances, generous counter space, and plenty of storage — perfect for cooking, gathering, and entertaining with ease. Gorgeous new luxury vinyl flooring and a new roof add even more peace of mind. Sunlight pours through the living room’s sliding glass doors, drawing you out to the back patio where calm canal views set the tone for quiet mornings and relaxing evenings. It’s a private slice of tranquility right in your backyard. The split-floor plan ensures everyone has their own space. The primary suite includes a roomy walk-in closet, while the two additional bedrooms are tucked away with a full bath nearby — ideal for guests, hobbies, or an office. Step outside and enjoy low-maintenance living with manageable yard space and that serene canal backdrop. Plus, you’re just moments from local restaurants, shopping, and the community’s convenient boat ramp for effortless lake access, perfect for residents who want convenience without sacrificing quiet, peaceful living. This is where your next chapter begins.
| 2 hours ago | Listing updated with changes from the MLS® | |
| 3 hours ago | Listing first seen on site |
Listing information is provided by Participants of the Stellar MLS. IDX information is provided exclusively for personal, non-commercial use, and may not be used for any purpose other than to identify prospective properties consumers may be interested in purchasing. Information is deemed reliable but not guaranteed. Properties displayed may be listed or sold by various participants in the MLS Copyright 2025, Stellar MLS.
Last checked: 2025-12-06 11:57 AM EST
Did you know? You can invite friends and family to your search. They can join your search, rate and discuss listings with you.